Casa SG: Una armoniosa fusión entre naturaleza y arquitectura en Luján
10/06/2023 l Arquitectura, Obra destacada
El proyecto liderado por la arquitecta Luciana Gotta destaca por su equilibrio y conexión con el entorno natural.
El estudio de arquitectura de Luciana Gotta presenta el proyecto “Casa SG”, una impresionante obra que combina magistralmente la arquitectura y la naturaleza en un entorno sereno y apacible. Ubicada en un Club de Campo en la ciudad de Luján, provincia de Buenos Aires, esta vivienda se ha convertido en un refugio ideal para escapar del bullicio de la ciudad, a tan solo 70 kilómetros de la capital.







La Casa SG se destaca por su enfoque innovador y su capacidad para interactuar de manera armónica con el entorno natural que la rodea. El proyecto tuvo como punto de partida la peculiaridad del terreno, con un área verde frente a él que se convirtió en la fuente de inspiración para su desarrollo. La arquitecta Luciana Gotta, con una interpretación rigurosa del lugar y los requerimientos del programa, logró que lo natural y lo artificial se fusionaran, rompiendo los límites convencionales.



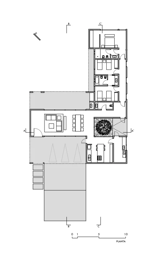
El diseño de la vivienda se basa en dos prismas perpendiculares que se intersecan, generando un espacio vacío que permite el ingreso controlado de la naturaleza en ambas direcciones. El prisma paralelo a la calle alberga las áreas públicas, brindando un espacio libre y flexible que establece una conexión visual directa con los espacios verdes circundantes. Con grandes ventanales de piso a techo y semicubiertos estratégicamente ubicados, se maximiza la entrada de luz natural y se refuerza la sensación de ligereza y conexión con el entorno.


Por otro lado, el prisma perpendicular a la calle contiene las áreas privadas de la vivienda, proporcionando un refugio íntimo para los residentes. La cocina y el lavadero se ocultan detrás de un muro completamente opaco, mientras que se abren al espacio interior vacío, donde destaca un exuberante acer palmatum. Los dormitorios y baños están cuidadosamente ubicados en relación con la orientación norte y el propio parque, permitiendo una mayor privacidad y luminosidad en los espacios. El dormitorio principal, situado al final de la vivienda, ofrece una vista resguardada del resto de la casa y se abre hacia el fondo del terreno.
En resumen, la Casa SG se destaca por su simplicidad y eficacia, logrando un equilibrio compositivo entre llenos y vacíos. El proyecto del estudio de arquitectura de Luciana Gotta establece una conexión intencionada entre los diferentes elementos arquitectónicos, vinculando espacios y creando un ambiente de serenidad. Mediante el uso selectivo de la transparencia, esta vivienda logra fusionarse armoniosamente con la naturaleza circundante, creando un entorno único y envolvente.

Información General
Nombre del proyecto: CASA SG
Estudio de arquitectura: Luciana Gotta
Mail: arqlucianagotta@gmail.com
Instagram del estudio de arquitectura: lucianagottaarq
Año terminación: 2018
Area total construida: 309 m2
Ubicación del proyecto: Luján, Buenos Aires
Photografos:
Creditos fotografo 1: Daniela Mac Adden
Pagina web fotografo 1: www.danielamacadden.com
Instagram fotografo 1: danielamacadden
Creditos fotografo 2: Juan Ignacio Giraudo
Pagina web fotografo 2: www.juanigiraudo.com
Instagram fotografo 2: juanigiraudo
AR
CL
UY






